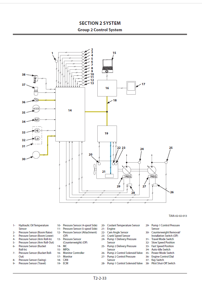
ZX490LC-6 Technical Manual (Operational Principle)

ZX490LC-6 Technical Manual (Operational Principle)

Format: PDF

Language: English

Size: 12,3 MB

Pages: 471

Delivery Method: Speed Download Link

Model: ZX490LC-6

Type of Documents: Engine Manual

$30

Description

ZX490LC-6 Technical Manual (Operational Principle)

Hitachi ZX490LC-6