ZX490LC-7H Workshop Manual

ZX490LC-7H Workshop Manual

Format: PDF

Language: English

Size: 136 MB

Pages: 1137

Delivery Method: Speed Download Link

Model: ZX490LC-7H

Type of Documents: Engine Manual

$30

Description

ZX490LC-7H Workshop Manual

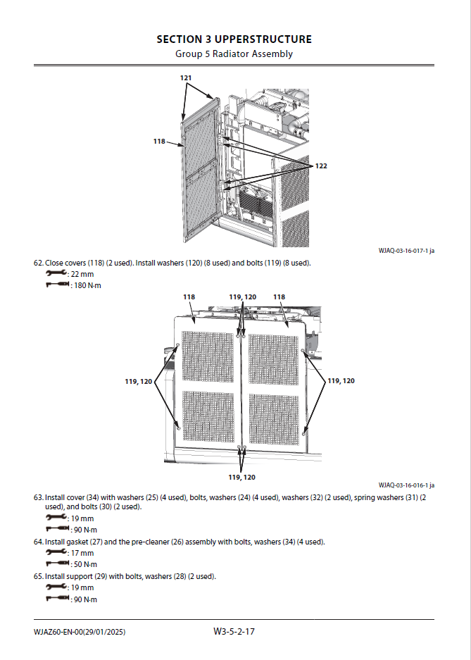
Hitachi ZX490LC-7H