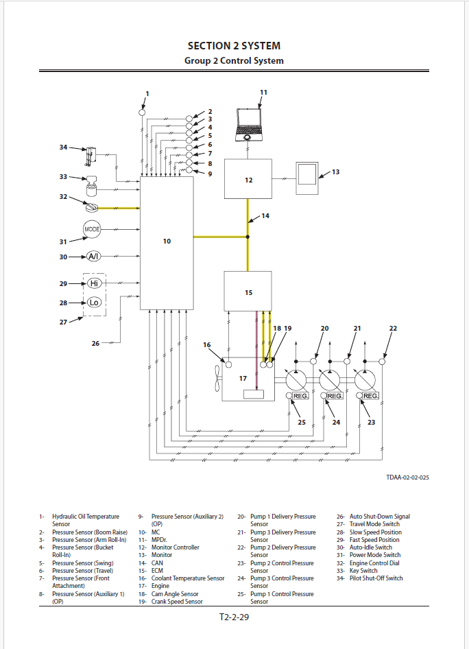
ZX350LC-5B,zx350LCN-5B Technical Manual (Operational Principle)

ZX350LC-5B,zx350LCN-5B Technical Manual (Operational Principle)

Format: PDF

Language: English

Size: 14,1 MB

Pages: 448

Delivery Method: Speed Download Link

Model: ZX350LC-5B,zx350LCN-5B

Type of Documents: Engine Manual

$30

Description

ZX350LC-5B,zx350LCN-5B Technical Manual (Operational Principle)

Hitachi ZX350LC-5B,zx350LCN-5B